MAGNOLIA ELEMENTARY
ID 2751 STUDIO
PROCESS WORK: CONCEPTUAL
AND SPATIAL DIAGRAMS
FLEX SPACE RENDERINGS
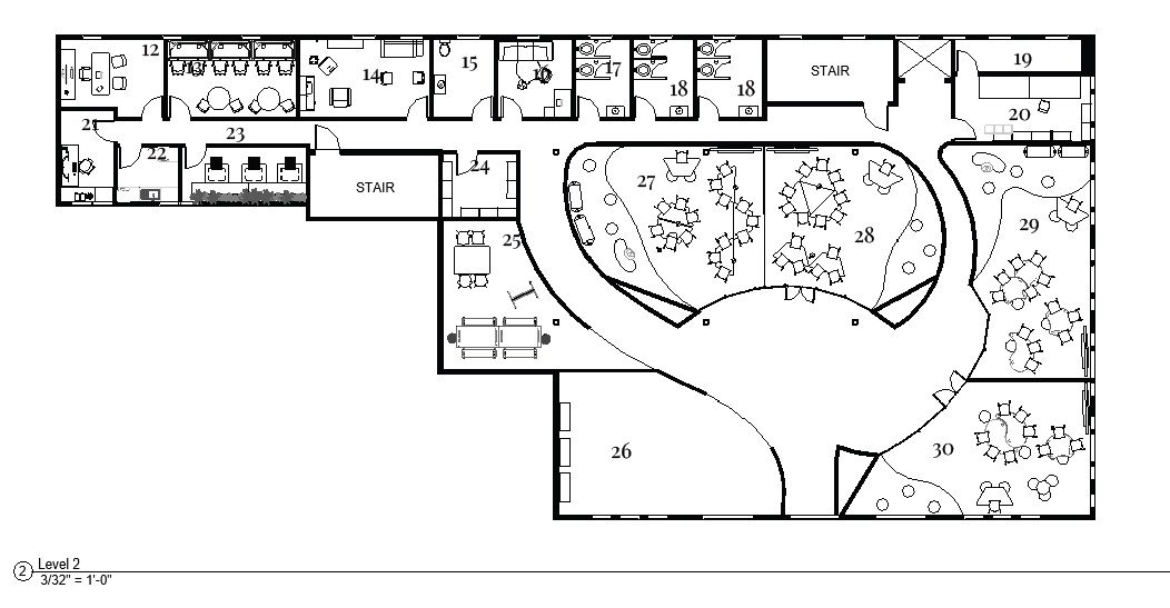
FLOOR PLANS
CLASSROOM RENDERINGS
MAGNOLIA ELEMENTARY
ID 2751 STUDIO
PROCESS WORK: CONCEPTUAL
AND SPATIAL DIAGRAMS
FLEX SPACE RENDERINGS
FLOOR PLANS
CLASSROOM RENDERINGS